Call Us: 0773-23-8789
Email:
info@daieikogyo.jp
Your Company Address
京都府福知山市字天田848-3
工事部のミズマです。
朝夕が少しばかり過ごしやすくなってきました。
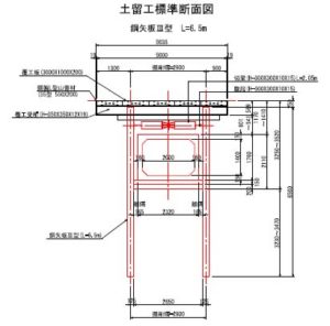
今回は、私が担当している工事現場の施工を、一部紹介します。
工事内容は、道路に鋼矢板を打込み、覆工板を設置、掘削を行い
ボックスカルバート(水路)を設置するといった工事です。

これが、ボックスカルバート(高さ1.76m 幅2.32m 長さ2.00m 重さ6.80トン) です。

これが、エアキャスターという道具で、4個使用し、中にはエアーバック(ビニール風船のようなもの)が入っており、空気を注入します。

25トンレッカーで、ボックスカルバートをエアキャスターの上に、置きます。

あとは、エアーバックに空気を送り込むと、エアーバックが膨らみ、ボックスカルバートが少し上がれば3人の力で、6.8tのボックスカルバートを押して設置場所まで、移動し設置します。


この、設置工法でボックスカルバート40本(80m)の施工を、3日間で完了しました。
これからも工事現場での、事故・けがのないよう安全に作業を、行っていきます。