Hw 様邸

↑
外観写真です。
撮影は2005年12月でしたので、雪が残っています。
外壁は金属サイディングを張っていて、シンプルでスッキリとした
仕上げとなっています。
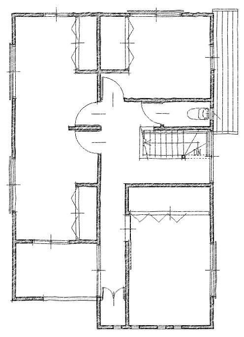
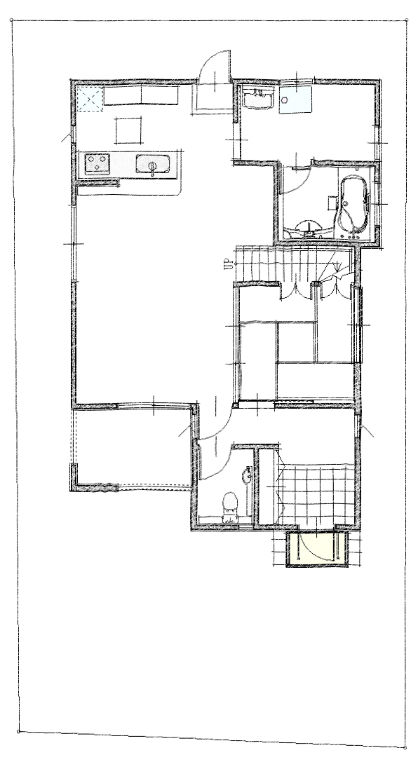
間取りはこちらをクリック

←
玄関ホール横の下足入(造付け)
家族みんなの靴が収納でき、
長靴やブーツといった長いモノも
収納できるようになっているので
玄関ホールも広く使えます。

1階LDK
対面式キッチンを要望されていた奥様。
キッチンと洗面家事室も隣接させ、使いやすく動きやすさに配慮しました。

階段
階段室を設けず、オープン階段と
したのでその分リビングが広めと
なりました。家族の気配を感じられ
る空間に仕上げました。






2階廊下
勾配天井仕上げとし、アクセントとして
正方形窓を取付ました。
明かりを取り入れ、閉鎖的でない空間に
仕上がりました。
勾配天井を利用した
小屋裏収納(ロフト)
今は子どもたちがひろびろとした室で
自由に使えるよう1室になっていますが
将来は間仕切壁を設けて独立した室に
なるよう入口も2ケ所設けています。
照明器具(蛍光灯)を電球色にすると、
温かみのある柔らかな空間に仕上がり
ます。
←
1階トイレ
掃除のしやすさはもちろんのこと、備品もスッキリと片付くよう収納スペースを設けました。
2階トイレ
左手前の収納棚(造付け)は
壁厚を利用して トイレロールが12個収納で きます。
まだ小さい子どもたちがみんなで入浴できるよう広めの浴室にしています。
アクセントとして浴槽のみオレンジ色としています。
システムキッチン
ホワイトを基調とした内装に合わせ
キッチンもパールホワイト色を選び
ました。
対面式なので、家事をしながら、
リビングの様子もうかがえます。
カップボード
キッチンとお揃いのパールホワイト色
コーヒーメーカーを置いたりできるカウンタータイプです。
collection


このホームページに掲載の画像・文章等の複写・転載等を禁じます。










08
copyright (c)2004 大栄工業株式会社 All Rights Reserved.

敷地面積 :152.52u(49.19坪)
延床面積 :133.88u(40.49坪)
2階床面積: 65.97u(19.95坪)
1階床面積: 67.91u(20.54坪)
DATE
工事種別:新築
用途:専用住宅
構造:木造在来工法2階建