Hm 様邸

シンプルな外観に仕上げ、外から眺めたとき洋風住宅に思いますが
内部仕上げはふんだんに木を用いています。
お施主様が塗装業を営んでおり、
無塗装板のサイディングにお施主
様が塗装されました。
手前の掃出シ窓の前には、将来
ウッドデッキを造作する予定となっています。
階段室のの高窓より光が差込み
明るい玄関ホールとなりました。
壁・天井は節のみえる合板を木造打ち放し仕上げとしています。
また、構造材の接合金物も隠していません。
この家で生活し、年月が経てば壁の色も濃くなり節が気にならな
くなってくるでしょう。
年月が経つほど、建物の魅力が増すような家造りを目指しました。
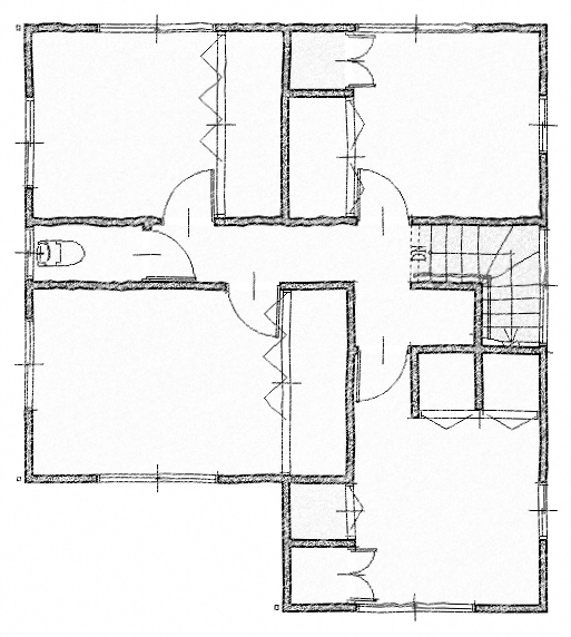
間取り図はこちらをクリック


このホームページに掲載の画像・文章等の複写・転載等を禁じます。
インテリアも木の打ちっ放し仕上げとし、木の香りを感じながら
勉強したり、遊んだり・・・。
学力がアップしそうです。
勉強机は造り付けとすることで、部屋が狭く感じないよう工夫しました。
客間として設けた和室ですが、ふんだんに
光りが差し込み、居心地の良いお気に入り
の空間となりました。
思っていた以上に、琉球タタミが
しっくりくる和室となりました。
押入として使うだけでなく、仏壇も収納できるよう工夫がなされています。
きちんと手を洗えるスペースを確保し、壁厚を利用して収納棚も造りました。
木の打ちっ放し仕上げですが、気密性などを
考慮し、浴室はユニットバスとしました。
ユニットの洗面化粧台を据付けるよりも
造り付けの棚の上に洗面器を据付くことで
施主様オリジナル空間が出来上がりました。
外へも洗濯物が干したい時に、サッと出られるよう、勝手口戸を取付ました。
施主様こだわりの半月を
かたどった居間出入り口戸
(造作建具)
大きい照明器具を一つ取り付けるではなく小さくても灯りがとれ、照明器具もインテリアの一つとして楽しめる空間に仕上げました。
造り付けのテレビ台の下は、収納棚を
取付、みせる収納空間に仕上げました。
テレビを観ている家族の気配を感じたり
家族みんなで食事の支度をしたり、家
族みんなが居心地の良い空間に仕上
がりました。
IHクッキングヒーターにより掃除もしやすく、子どもたちもお手伝いしやすく、もちろんお母さんも使い勝手がいい、そんな仕上がりとなりました。























07
copyright (c)2004 大栄工業株式会社 All Rights Reserved.

敷地面積 :184.43u(55.79坪)
延床面積 :124.18u(37.56坪)
2階床面積: 62.09u(18.78坪)
1階床面積: 62.09u(18.78坪)
DATE
工事種別:新築
用途:専用住宅
構造:木造在来工法2階建